Ремонт и отделка в Краснодаре
Золотые руки
Без стресса с удовольствием с 2004 года
г. Краснодар, ул. Бабушкина, 146, оф. 404
Время работы с 09:00 до 18:00
Заказать звонок

Ремонт под ключ 3-х к. квартиры 92 м2 по ул.Линейная

Хотите убедиться в качестве нашей работы своими глазами и посетить наши реальные строящиеся объекты на любой стадии ремонта? Запишитесь на просмотр по телефону +7 900 266 11 55 или заполните форму.
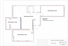
   Представляем один из "вкусных" и красивых объектов. Трех комнатную квартиру перепланировали таким образом выделив кабинет с присоединением балкона и присоединением части комнаты как гостиную, примыкающую к кухне. Получилось очень здорово, прежде всего за счет применения нетривиальных решений, различных подсветок, ярких материалов и вкусу хозяина квартиры. Объект сдан в марте 2017 года. Дизайн-проект "Базовый" представлен в портфолио и был предоставлен в подарок. Квартира попала в ремонт вообще без штукатурки и электропроводки.
Ремонт под ключ 3-х к. квартиры 92 м2 по ул.Линейная
Ремонт под ключ 3-х к. квартиры 92 м2 по ул.Линейная
Ремонт под ключ 3-х к. квартиры 92 м2 по ул.Линейная
Ремонт под ключ 3-х к. квартиры 92 м2 по ул.Линейная
ул. Линейная
площадь: 92 м2
количество комнат: 3
срок ремонта: 3,5 месяца
Стоимость такого ремонта:
Стоимость всех работ: 780 тыс. руб.
Стоимость черновых материалов: 380 тыс. руб.
Калькулятор ремонта
Калькулятор ремонта
Обсудим ваш ремонт или проект подробнее?
Звоните: +7 918 240 60 10 
Пишите: goldhands2004@mail.ru
Или оставьте заявку, и мы перезвоним в ближайшее время
Оставляя заявку на звонок на сайте, вы соглашаетесь с политикой конфиденциальности и условиями обработки данных.